Glen Range
Spacious, Stylish and Flooded with Natural Light
Our bestselling lodge range, designed for luxury living and lasting memories.
The Glen Range offers generous, well-planned layouts with contemporary specifications and stunning atrium windows that bathe your lodge in natural light. Every Glen lodge is made to order and fully customisable — you can personalise an existing floorplan or work with our in-house architect to design a completely bespoke home or holiday lodge. The designs shown here are examples of what we’ve previously created and act as inspiration and a guide for pricing. However you choose to proceed, our expert team will support you through every step of the design process.
Flexible Floorplans
The Glen Range can be designed to suit your needs:
• From 1-bedroom to 4-bedroom layouts
• Up to 3 bathrooms, including en suite options
• Based on existing Glen Range buildings or fully bespoke designs
• Fully accessible layouts for all ages and mobility levels
• Tailored interiors for family comfort or single occupants
No matter the size or configuration, each lodge is built to the same high-quality, durable, and energy-efficient standards.
-

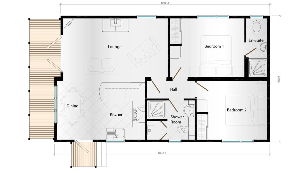
The Glenbreck
Bedrooms: 2
People: 4 -

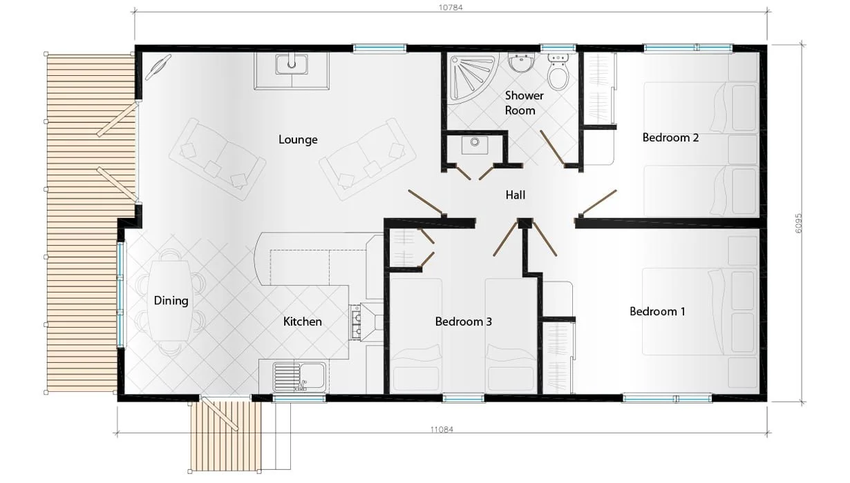
The Glencoe
Bedrooms: 3
People: 6/8 -

The Glenfarg
Bedrooms: 2
People: 4/6 -

The Glenluce
Bedrooms: 4
People: 8/10 -

The Glencarse
Bedrooms: 3
People: 6/8 -

The Glendevon
Bedrooms: 3
People: 6/8 -

The Glenfinnan
Bedrooms: 2
People: 4
